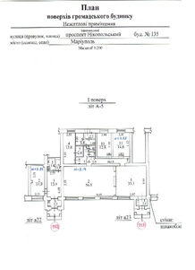
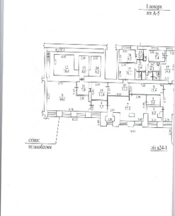
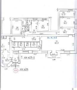
Нежиле приміщення (8/100 часток), загальною площею 751,4 кв.м, за адресою: Донецька обл., м. Маріуполь, проспект Ілліча, будинок 135, приміщення 112,113,114. Реєстраційний номер об`єкту нерухомого майна: 6911327. Інвентарний № 103139. Майнові права на банк, загальною площею 115,2 кв.м, за адресою: Донецька обл., м. Маріуполь, проспект Ілліча, будинок 135 (приміщення 123). Інвентарний № 103088. Земельна ділянка, площею 0,022 га (кадастровий номер 1412336600:01:011:0296), за адресою: Донецька обл., м. Маріуполь, проспект Ілліча, 135. Цільове призначення - для експлуатації та обслуговування будівлі банку. Реєстраційний номер об`єкту нерухомого майна: 3209995514123. Інвентарний № 103412. Основні засоби у кількості 266 одиниць

Нежиле приміщення (8/100 часток), загальною площею 751,4 кв.м, за адресою: Донецька обл., м. Маріуполь, проспект Ілліча, будинок 135, приміщення 112,113,114. Реєстраційний номер об`єкту нерухомого майна: 6911327. Інвентарний № 103139. Майнові права на банк, загальною площею 115,2 кв.м, за адресою: Донецька обл., м. Маріуполь, проспект Ілліча, будинок 135 (приміщення 123). Інвентарний № 103088. Земельна ділянка, площею 0,022 га (кадастровий номер 1412336600:01:011:0296), за адресою: Донецька обл., м. Маріуполь, проспект Ілліча, 135. Цільове призначення - для експлуатації та обслуговування будівлі банку. Реєстраційний номер об`єкту нерухомого майна: 3209995514123. Інвентарний № 103412. Основні засоби у кількості 266 одиниць
Нежиле приміщення (8/100 часток), загальною площею 751,4 кв.м, за адресою: Донецька обл., м. Маріуполь, проспект Ілліча, будинок 135, приміщення 112,113,114. Реєстраційний номер об`єкту нерухомого майна: 6911327. Інвентарний № 103139. Майнові права на банк, загальною площею 115,2 кв.м, за адресою: Донецька обл., м. Маріуполь, проспект Ілліча, будинок 135 (приміщення 123). Інвентарний № 103088. Земельна ділянка, площею 0,022 га (кадастровий номер 1412336600:01:011:0296), за адресою: Донецька обл., м. Маріуполь, проспект Ілліча, 135. Цільове призначення - для експлуатації та обслуговування будівлі банку. Реєстраційний номер об`єкту нерухомого майна: 3209995514123. Інвентарний № 103412. Основні засоби у кількості 266 одиниць
Нежиле приміщення (8/100 часток), загальною площею 751,4 кв.м, за адресою: Донецька обл., м. Маріуполь, проспект Ілліча, будинок 135, приміщення 112,113,114. Реєстраційний номер об`єкту нерухомого майна: 6911327. Інвентарний № 103139. Майнові права на банк, загальною площею 115,2 кв.м, за адресою: Донецька обл., м. Маріуполь, проспект Ілліча, будинок 135 (приміщення 123). Інвентарний № 103088. Земельна ділянка, площею 0,022 га (кадастровий номер 1412336600:01:011:0296), за адресою: Донецька обл., м. Маріуполь, проспект Ілліча, 135. Цільове призначення - для експлуатації та обслуговування будівлі банку. Реєстраційний номер об`єкту нерухомого майна: 3209995514123. Інвентарний № 103412. Основні засоби у кількості 266 одиниць
Нежиле приміщення (8/100 часток), загальною площею 751,4 кв.м, за адресою: Донецька обл., м. Маріуполь, проспект Ілліча, будинок 135, приміщення 112,113,114. Реєстраційний номер об`єкту нерухомого майна: 6911327. Інвентарний № 103139. Майнові права на банк, загальною площею 115,2 кв.м, за адресою: Донецька обл., м. Маріуполь, проспект Ілліча, будинок 135 (приміщення 123). Інвентарний № 103088. Земельна ділянка, площею 0,022 га (кадастровий номер 1412336600:01:011:0296), за адресою: Донецька обл., м. Маріуполь, проспект Ілліча, 135. Цільове призначення - для експлуатації та обслуговування будівлі банку. Реєстраційний номер об`єкту нерухомого майна: 3209995514123. Інвентарний № 103412. Основні засоби у кількості 266 одиниць
Нежиле приміщення (8/100 часток), загальною площею 751,4 кв.м, за адресою: Донецька обл., м. Маріуполь, проспект Ілліча, будинок 135, приміщення 112,113,114. Реєстраційний номер об`єкту нерухомого майна: 6911327. Інвентарний № 103139. Майнові права на банк, загальною площею 115,2 кв.м, за адресою: Донецька обл., м. Маріуполь, проспект Ілліча, будинок 135 (приміщення 123). Інвентарний № 103088. Земельна ділянка, площею 0,022 га (кадастровий номер 1412336600:01:011:0296), за адресою: Донецька обл., м. Маріуполь, проспект Ілліча, 135. Цільове призначення - для експлуатації та обслуговування будівлі банку. Реєстраційний номер об`єкту нерухомого майна: 3209995514123. Інвентарний № 103412. Основні засоби у кількості 266 одиниць
Нежиле приміщення (8/100 часток), загальною площею 751,4 кв.м, за адресою: Донецька обл., м. Маріуполь, проспект Ілліча, будинок 135, приміщення 112,113,114. Реєстраційний номер об`єкту нерухомого майна: 6911327. Інвентарний № 103139. Майнові права на банк, загальною площею 115,2 кв.м, за адресою: Донецька обл., м. Маріуполь, проспект Ілліча, будинок 135 (приміщення 123). Інвентарний № 103088. Земельна ділянка, площею 0,022 га (кадастровий номер 1412336600:01:011:0296), за адресою: Донецька обл., м. Маріуполь, проспект Ілліча, 135. Цільове призначення - для експлуатації та обслуговування будівлі банку. Реєстраційний номер об`єкту нерухомого майна: 3209995514123. Інвентарний № 103412. Основні засоби у кількості 266 одиниць
Нежиле приміщення (8/100 часток), загальною площею 751,4 кв.м, за адресою: Донецька обл., м. Маріуполь, проспект Ілліча, будинок 135, приміщення 112,113,114. Реєстраційний номер об`єкту нерухомого майна: 6911327. Інвентарний № 103139. Майнові права на банк, загальною площею 115,2 кв.м, за адресою: Донецька обл., м. Маріуполь, проспект Ілліча, будинок 135 (приміщення 123). Інвентарний № 103088. Земельна ділянка, площею 0,022 га (кадастровий номер 1412336600:01:011:0296), за адресою: Донецька обл., м. Маріуполь, проспект Ілліча, 135. Цільове призначення - для експлуатації та обслуговування будівлі банку. Реєстраційний номер об`єкту нерухомого майна: 3209995514123. Інвентарний № 103412. Основні засоби у кількості 266 одиниць
Нежиле приміщення (8/100 часток), загальною площею 751,4 кв.м, за адресою: Донецька обл., м. Маріуполь, проспект Ілліча, будинок 135, приміщення 112,113,114. Реєстраційний номер об`єкту нерухомого майна: 6911327. Інвентарний № 103139. Майнові права на банк, загальною площею 115,2 кв.м, за адресою: Донецька обл., м. Маріуполь, проспект Ілліча, будинок 135 (приміщення 123). Інвентарний № 103088. Земельна ділянка, площею 0,022 га (кадастровий номер 1412336600:01:011:0296), за адресою: Донецька обл., м. Маріуполь, проспект Ілліча, 135. Цільове призначення - для експлуатації та обслуговування будівлі банку. Реєстраційний номер об`єкту нерухомого майна: 3209995514123. Інвентарний № 103412. Основні засоби у кількості 266 одиниць
Нежиле приміщення (8/100 часток), загальною площею 751,4 кв.м, за адресою: Донецька обл., м. Маріуполь, проспект Ілліча, будинок 135, приміщення 112,113,114. Реєстраційний номер об`єкту нерухомого майна: 6911327. Інвентарний № 103139. Майнові права на банк, загальною площею 115,2 кв.м, за адресою: Донецька обл., м. Маріуполь, проспект Ілліча, будинок 135 (приміщення 123). Інвентарний № 103088. Земельна ділянка, площею 0,022 га (кадастровий номер 1412336600:01:011:0296), за адресою: Донецька обл., м. Маріуполь, проспект Ілліча, 135. Цільове призначення - для експлуатації та обслуговування будівлі банку. Реєстраційний номер об`єкту нерухомого майна: 3209995514123. Інвентарний № 103412. Основні засоби у кількості 266 одиниць
Нежиле приміщення (8/100 часток), загальною площею 751,4 кв.м, за адресою: Донецька обл., м. Маріуполь, проспект Ілліча, будинок 135, приміщення 112,113,114. Реєстраційний номер об`єкту нерухомого майна: 6911327. Інвентарний № 103139. Майнові права на банк, загальною площею 115,2 кв.м, за адресою: Донецька обл., м. Маріуполь, проспект Ілліча, будинок 135 (приміщення 123). Інвентарний № 103088. Земельна ділянка, площею 0,022 га (кадастровий номер 1412336600:01:011:0296), за адресою: Донецька обл., м. Маріуполь, проспект Ілліча, 135. Цільове призначення - для експлуатації та обслуговування будівлі банку. Реєстраційний номер об`єкту нерухомого майна: 3209995514123. Інвентарний № 103412. Основні засоби у кількості 266 одиниць
Вид майна (активу)
Нежитлова нерухомість
Область
Донецька
Місто
Маріуполь
Вид майна (активу)
Земля для будівництва
Номер лоту
GL22N028085
Дата торгів
2025-12-24

Нежиле приміщення (8/100 часток), загальною площею 751,4 кв.м, за адресою: Донецька обл., м. Маріуполь, проспект Ілліча, будинок 135, приміщення 112,113,114. Реєстраційний номер об'єкту нерухомого майна: 6911327. Інвентарний № 103139. Майнові права на банк, загальною площею 115,2 кв.м, за адресою: Донецька обл., м. Маріуполь, проспект Ілліча, будинок 135 (приміщення 123). Інвентарний № 103088. Земельна ділянка, площею 0,022 га (кадастровий номер 1412336600:01:011:0296), за адресою: Донецька обл., м. Маріуполь, проспект Ілліча, 135. Цільове призначення - для експлуатації та обслуговування будівлі банку. Інвентарний № 103412. Основні засоби у кількості 266 одиниць

Торги не відбулись Стартова ціна на аукціоні: 7 024 918,94 грн
Інформація та документи, розміщені на цьому сайті, були підготовлені Фондом гарантування вкладів фізичних осіб (далі – Фонд) виключно для інформаційних цілей і не повинні вважатися спонуканням до будь-яких дій чи бездіяльності. Інформація та документи, що міститься на цьому сайті, були отримані з/або ґрунтуються на джерелах, які вважаються надійними, але не є вичерпними та не можуть сприйматися як повні або актуальні. Рішення покупця щодо будь-яких дій або бездіяльності повинно ґрунтуватися на власних оцінках та дослідженнях майна (активу/активів), котре реалізується, в тому числі шляхом перевірки інформації у відповідних державних реєстрах та інших відкритих джерелах інформації. Фонд не несе відповідальності за рішення покупця та його наслідки, що ґрунтуються на інформації, викладеній на даному сайті.​