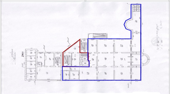
Комплекс нежитлових приміщень №2 (приміщення першого поверху), загальною площею 376,4 кв.м, за адресою: Автономна Республіка Крим, м. Севастополь, проспект Генерала Острякова, будинок 36 - ``а``. Реєстровий №6459 стр. 186 в реєстровій книзі 23 нж. Інвентарний № 88182

Комплекс нежитлових приміщень №2 (приміщення першого поверху), загальною площею 376,4 кв.м, за адресою: Автономна Республіка Крим, м. Севастополь, проспект Генерала Острякова, будинок 36 - ``а``. Реєстровий №6459 стр. 186 в реєстровій книзі 23 нж. Інвентарний № 88182
Комплекс нежитлових приміщень №2 (приміщення першого поверху), загальною площею 376,4 кв.м, за адресою: Автономна Республіка Крим, м. Севастополь, проспект Генерала Острякова, будинок 36 - ``а``. Реєстровий №6459 стр. 186 в реєстровій книзі 23 нж. Інвентарний № 88182
Комплекс нежитлових приміщень №2 (приміщення першого поверху), загальною площею 376,4 кв.м, за адресою: Автономна Республіка Крим, м. Севастополь, проспект Генерала Острякова, будинок 36 - ``а``. Реєстровий №6459 стр. 186 в реєстровій книзі 23 нж. Інвентарний № 88182
Комплекс нежитлових приміщень №2 (приміщення першого поверху), загальною площею 376,4 кв.м, за адресою: Автономна Республіка Крим, м. Севастополь, проспект Генерала Острякова, будинок 36 - ``а``. Реєстровий №6459 стр. 186 в реєстровій книзі 23 нж. Інвентарний № 88182
Комплекс нежитлових приміщень №2 (приміщення першого поверху), загальною площею 376,4 кв.м, за адресою: Автономна Республіка Крим, м. Севастополь, проспект Генерала Острякова, будинок 36 - ``а``. Реєстровий №6459 стр. 186 в реєстровій книзі 23 нж. Інвентарний № 88182
Комплекс нежитлових приміщень №2 (приміщення першого поверху), загальною площею 376,4 кв.м, за адресою: Автономна Республіка Крим, м. Севастополь, проспект Генерала Острякова, будинок 36 - ``а``. Реєстровий №6459 стр. 186 в реєстровій книзі 23 нж. Інвентарний № 88182
Вид майна (активу)
Нежитлова нерухомість
Область
АР Крим
Місто
Севастополь
Номер лоту
GL22N028128
Дата торгів
2026-01-12

Комплекс нежитлових приміщень №2 (приміщення першого поверху), загальною площею 376,4 кв.м, за адресою: Автономна Республіка Крим, м. Севастополь, проспект Генерала Острякова, будинок 36 - "а". Реєстровий №6459 стр. 186 в реєстровій книзі 23 нж. Інвентарний № 88182.

Торги не відбулись Стартова ціна на аукціоні: 8 899 351,00 грн
Інформація та документи, розміщені на цьому сайті, були підготовлені Фондом гарантування вкладів фізичних осіб (далі – Фонд) виключно для інформаційних цілей і не повинні вважатися спонуканням до будь-яких дій чи бездіяльності. Інформація та документи, що міститься на цьому сайті, були отримані з/або ґрунтуються на джерелах, які вважаються надійними, але не є вичерпними та не можуть сприйматися як повні або актуальні. Рішення покупця щодо будь-яких дій або бездіяльності повинно ґрунтуватися на власних оцінках та дослідженнях майна (активу/активів), котре реалізується, в тому числі шляхом перевірки інформації у відповідних державних реєстрах та інших відкритих джерелах інформації. Фонд не несе відповідальності за рішення покупця та його наслідки, що ґрунтуються на інформації, викладеній на даному сайті.​